Remodelación de un piso del arquitecto Oscar Niemeyer reconvertido en loft.
Arquitectos: Felipe Hess & Renata Pedrosa
Localización: São Paulo, Brazil
Año del proyecto: 2008-2009
Fotografías: Fran Parente http://www.franparente.com/EN/
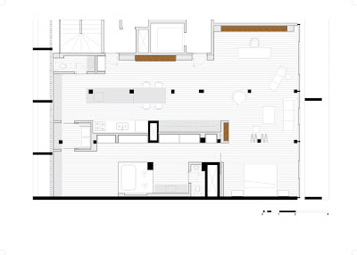
Piso ubicado en São Paulo, Brasil. Un ejemplo de rehabilitación dentro del emblemático Edificio Copan de los años 50 del maestro Niemeyer.
Se trataba de un apartamento de 140 metros cuadrados, con tres dormitorios, salón, cocina y lavadero reconvertido en este proyecto en un loft de planta libre, con estructura libre, tanto los pilares como los forjados de hormigón que distribuyen los nuevos espacios creados.





















No hay comentarios:
Publicar un comentario